Однокомнатная квартира 69,20 м2 по ул. Гурьевский район Гурьевск, Героя России Катериничева улица,1 за 10726000 руб.

Однокомнатная квартира по ул. Гурьевский район, Гурьевск, Героя России Катериничева улица,1 в Калининграде
Цена 10 726 000 р. (155 000 р./м2)
Подать заявку на ипотеку
Адрес Гурьевский район, Гурьевск, Героя России Катериничева улица,1
Этаж 1/7
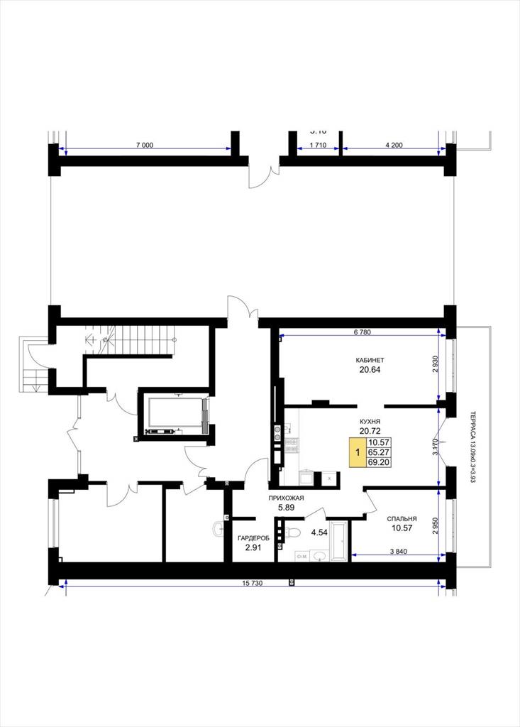
Площадь общая 69,2 м2, жилая 10,57 м2, кухни 20,72 м2
Кол-во комнат Однокомнатная
Продается 1-комн. квартира, площадью 69.2 м2 в монолитно-кирпичной новостройке. Возможен вариант покупки с использованием ипотечных средств, есть рассрочка, возможна покупка с использованием материнского капитала, есть военная ипотека. Жилая площадь 10.57 м2, кухня 20.72 м2, предчистовая отделка, комнаты изолированные. Квартира располагается на 1 этаже 7-этажного дома в ЖК Включи. Застройщик - ГК ССК, сдача дома - I квартал 2027 года, высота потолков 2.7 м. Дом оборудован пассажирским лифтом. Парковка автомобилей - наземная. Инфраструктура: спортивные площадки, места для отдыха, супермаркет, коммерческие объекты. Представляем вашему вниманию жилой комплекс комфорт-класса «Включи», расположенный в экологически чистом, окруженном зеленью, тихом и спокойном районе с хорошо развитой инфраструктурой всего в 3 км от Калининграда. Здесь вы сможете насладиться всеми преимуществами загородной жизни, не отрываясь от большого города. В жилом комплексе «Включи» от застройщика ССК действует специальное предложение - ремонт в подарок на 2- и 3-комнатные квартиры в корпусах литер 1, 2, 3 и 4. Теперь вы можете получить квартиру с готовой качественной отделкой: ровными стенами, полами, потолками, установленной сантехникой, электророзетками и освещением. Вам не нужно тратить время, силы и деньги на ремонт - достаточно просто распаковать вещи и начать жить в своём новом доме с первого дня. Ремонт в подарок предоставляется вместо других скидок, но может суммироваться с рассрочкой от застройщика, что делает приобретение жилья ещё более доступным. Позвоните и узнайте условия покупки прямо сейчас!
Описание дома
Этажность дома 7
Объявление № 23211674
Дата подачи:
5 сентября 2025 г. 12:15
Дата обновления:
5 сентября 2025 г. 14:22
Просмотров 19 Хотите продать быстрее?

Продавец
Отдел продаж
Показать номер телефона
Пожаловаться
Комментарии:
Добавить